Espace propriétaire
fr

Votre recherche

Vendu
Saint-Sébastien-sur-Loire (44230)

3 pièces - 66 m²

T3 (à rénover) | DERNIER ÉTAGE | LUMINEUX | BALCON | PARKING | DPE D

Ref : VAP-20250327-BEN
A propos de ce bien

-SOUS PROMESSE-

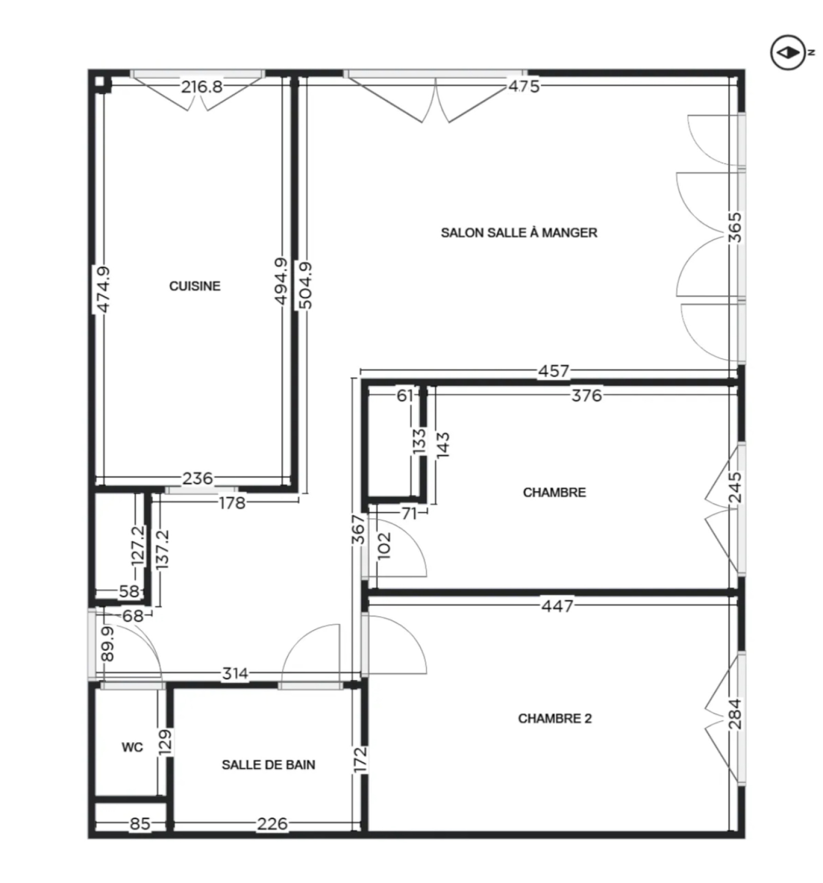
FLAT AND HOUSE Humaimbilier & Aurélie Pelloquin vous présentent en exclu : cet appartement LUMINEUX situé 32 rue de la Baugerie, au 3ème et dernier étage (avec ascenseur) d'un immeuble des années 70. La copropriété a été ravalée avec isolation par l'extérieur en 2023 : vous n'aurez plus qu'à mettre votre énergie et votre créativité dans la rénovation intérieure de cet appartement.

Il est agencé en étoile, l'entrée dispose d'un placard, et distribue ensuite :


- une cuisine de 10m2, dont on pourra ouvrir la cloison pour une pièce de vie de plus de 28m2 (l'actuel salon mesurant 18m2). Le balcon pourra accueillir un espace détente à l'abri de la pluie.

- 2 chambres de belle taille (quasiment 11 et 13m2)

- une salle de bains

- des toilettes séparées.

Une rénovation globale est à prévoir : menuiseries (notamment la baie du salon), reprise des sols, murs, plafonds, cuisine, sanitaires, électricité à mettre aux normes. Volets roulants électriques fonctionnels.

Ses + : dernier étage, très lumineux, spacieux et bien agencé.

Vous bénéficiez d'une place de parking (stationnement aérien) et d'une grande cave (éclairée et saine) en annexe.

Ce bien vous est proposé en vente interactive : c'est vous qui déterminerez le prix final de ce bien (vidéo en lien). Projet de rénovation globale (mise en relation avec artisans sérieux possible) à mener.

Le prix de première offre possible est fixé à 120000 € (honoraires inclus). Aucuns frais supplémentaires ne sont à prévoir hormis les droits de mutation. La participation à la vente interactive est soumise à une visite du bien et à la constitution d’un dossier de financement validé. Toutes les offres seront transmises au vendeur qui restera libre dans la sélection de celle à laquelle il entend donner suite.


Les informations sur les risques auxquels ce bien est exposé sont disponibles sur le site Géorisques
Descriptif de ce bien
Général
Code postal 44230
Surface loi Carrez (m²) 66 m²
Nombre de chambre(s) 2
Nombre de pièces 3
Etage 3
Ascenseur OUI
Détails
Nb de salle de bains 1
Balcon OUI
Cave OUI
Nombre de parking 1
Année de construction 1980
Energie
DPE GES
Contacter pour ce bien
Négociateur
Pelloquin Aurélie Agent commercial
Téléphone 0667762506
N° RSAC RSAC 2020AC00308

* Champ obligatoire

Les informations recueillies sur ce formulaire sont enregistrées dans un fichier informatisé par La Boite Immo agissant comme Sous-traitant du traitement pour la gestion de la clientèle/prospects de l'Agence / du Réseau qui reste Responsable du Traitement de vos Données personnelles. La base légale du traitement repose sur l'intérêt légitime de l'Agence / du Réseau. Elles sont conservées jusqu'à demande de suppression et sont destinées à l'Agence / au Réseau. Conformément à la loi « informatique et libertés », vous disposez des droits d’accès, de rectification, d’effacement, d’opposition, de limitation et de portabilité de vos données. Vous pouvez retirer votre consentement à tout moment en contactant directement l’Agence / Le Réseau. Consultez le site https://cnil.fr/fr pour plus d’informations sur vos droits. Si vous estimez, après avoir contacté l'Agence / le Réseau, que vos droits « Informatique et Libertés » ne sont pas respectés, vous pouvez adresser une réclamation à la CNIL. Nous vous informons de l’existence de la liste d'opposition au démarchage téléphonique « Bloctel », sur laquelle vous pouvez vous inscrire ici : https://www.bloctel.gouv.fr Dans le cadre de la protection des Données personnelles, nous vous invitons à ne pas inscrire de Données sensibles dans le champ de saisie libre.
Ce site est protégé par reCAPTCHA, les Politiques de Confidentialité et les Conditions d'Utilisation de Google s'appliquent.

Découvrir nos outils