Espace propriétaire
fr

Votre recherche

Vendu
La Montagne (44620)

4 pièces - 97 m²

Cœur de bourg | Maison 2/3 ch | Garage | Jardin | DPE D

Ref : VAP-20241021-MAR
A propos de ce bien

[VENDU]

FLAT AND HOUSE Humaimbilier & Aurélie Pelloquin vous présentent en exclusivité : rue de la Briandière, dans le bourg de La Montagne, à proximité immédiate des transports et des commerces, cette maison, construction pierre, sans travaux à prévoir.

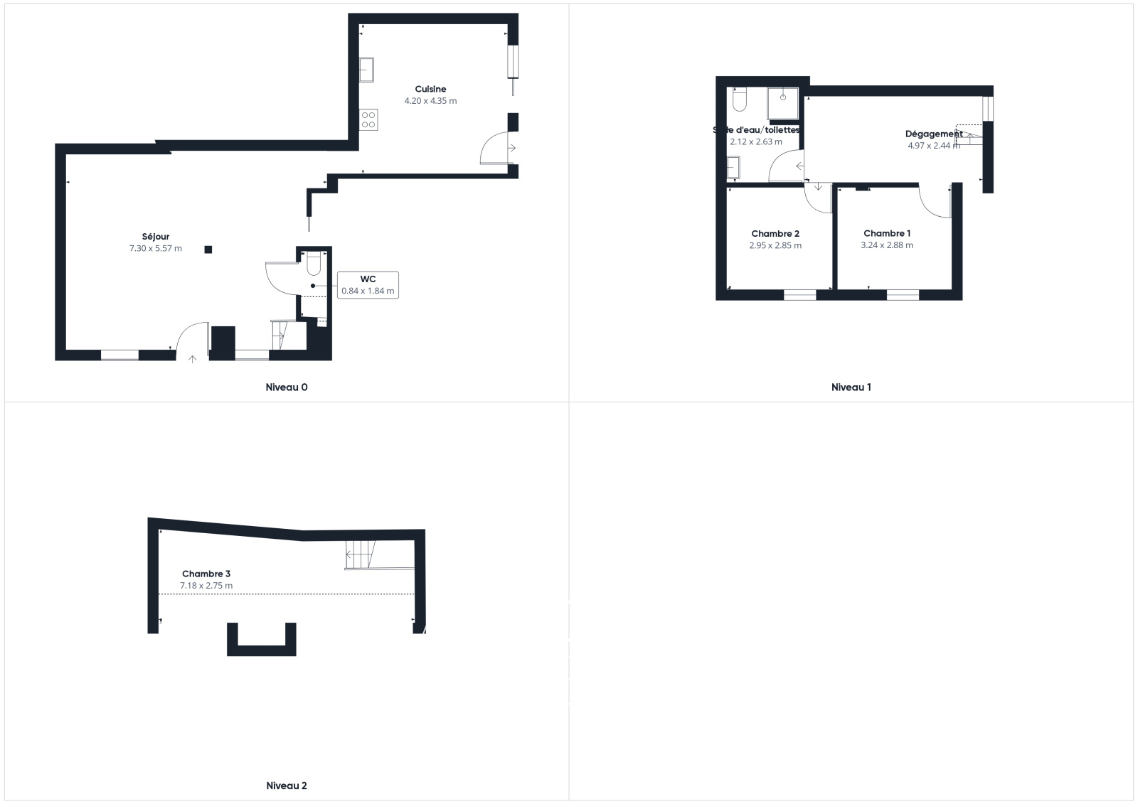
Elle propose au rez-de-chaussée une pièce de vie d'environ 40m2, prolongée d'une grande cuisine dînatoire de quasiment 20m2, ouvrant elle-même sur un jardin clos et bien exposé, d'environ 80m2, équipé d'un agréable espace convivial pour le barbecue.

L'étage de cette maison dispose de 2 chambres+ 3ème espace en mezzanine qui pourra servir de chambre d'appoint, ou de bureau.

En annexe, vous apprécierez le garage, qui permettra d'accueillir un véhicule à l'intérieur + un deuxième devant sur rue.


Les informations sur les risques auxquels ce bien est exposé sont disponibles sur le site Géorisques
Descriptif de ce bien
Général
Code postal 44620
Nombre de chambre(s) 2
Nombre de pièces 4
Nombre de niveaux 2
Détails
Nb de salle d'eau 1
Cuisine Séparée
Type de cuisine Equipée
Mode de chauffage Gaz de ville
Type de chauffage TRAD_TYPE_CHAUFF_CHAUDIERE
Format de chauffage Individuel
Interphone NON
Visiophone NON
Terrasse OUI
Murs mitoyens 1
Nombre de garage 1
Nombre de parking 1
Année de construction 1900
Composition
Rez de chaussée
salon/sejour 38.8 m²

cuisine 18 m²

WC 0.70 m²

Etage 1
chambre 9.2 m²

chambre 8.5 m²

salle d'eau 5.64 m²

Palier / Dressing 12.5 m²

chambre

Surface au sol15,3

Financier
Taxe foncière annuelle 1 107 €
Energie
DPE GES
Contacter pour ce bien
Négociateur
Pelloquin Aurélie Agent commercial
Téléphone 0667762506
N° RSAC RSAC 2020AC00308

* Champ obligatoire

Les informations recueillies sur ce formulaire sont enregistrées dans un fichier informatisé par La Boite Immo agissant comme Sous-traitant du traitement pour la gestion de la clientèle/prospects de l'Agence / du Réseau qui reste Responsable du Traitement de vos Données personnelles. La base légale du traitement repose sur l'intérêt légitime de l'Agence / du Réseau. Elles sont conservées jusqu'à demande de suppression et sont destinées à l'Agence / au Réseau. Conformément à la loi « informatique et libertés », vous disposez des droits d’accès, de rectification, d’effacement, d’opposition, de limitation et de portabilité de vos données. Vous pouvez retirer votre consentement à tout moment en contactant directement l’Agence / Le Réseau. Consultez le site https://cnil.fr/fr pour plus d’informations sur vos droits. Si vous estimez, après avoir contacté l'Agence / le Réseau, que vos droits « Informatique et Libertés » ne sont pas respectés, vous pouvez adresser une réclamation à la CNIL. Nous vous informons de l’existence de la liste d'opposition au démarchage téléphonique « Bloctel », sur laquelle vous pouvez vous inscrire ici : https://www.bloctel.gouv.fr Dans le cadre de la protection des Données personnelles, nous vous invitons à ne pas inscrire de Données sensibles dans le champ de saisie libre.
Ce site est protégé par reCAPTCHA, les Politiques de Confidentialité et les Conditions d'Utilisation de Google s'appliquent.

Découvrir nos outils