Espace propriétaire
fr

Votre recherche

Saint-Herblain (44800)

6 pièces - 136 m²

SOUS OFFRE ACCEPTÉE

Ref : VAP-20250605-DENa
A propos de ce bien

L'AGENCE FLAT. & Aurélie Pelloquin vous proposent de découvrir cette maison, située allée d'Aspin, dans le bourg de Saint Herblain, 10min à pied du TER pour Nantes et St Nazaire, des commerces et des écoles. AU CALME ABSOLU de son impasse, cette maison de 1996 recherche sa nouvelle famille ! Elle séduira ceux d'entre vous qui apprécient une construction SAINE et bien entretenue, malgré avec quelques travaux de décoration/rafraîchissement permettant de la rendre facilement tendance et à votre goût.

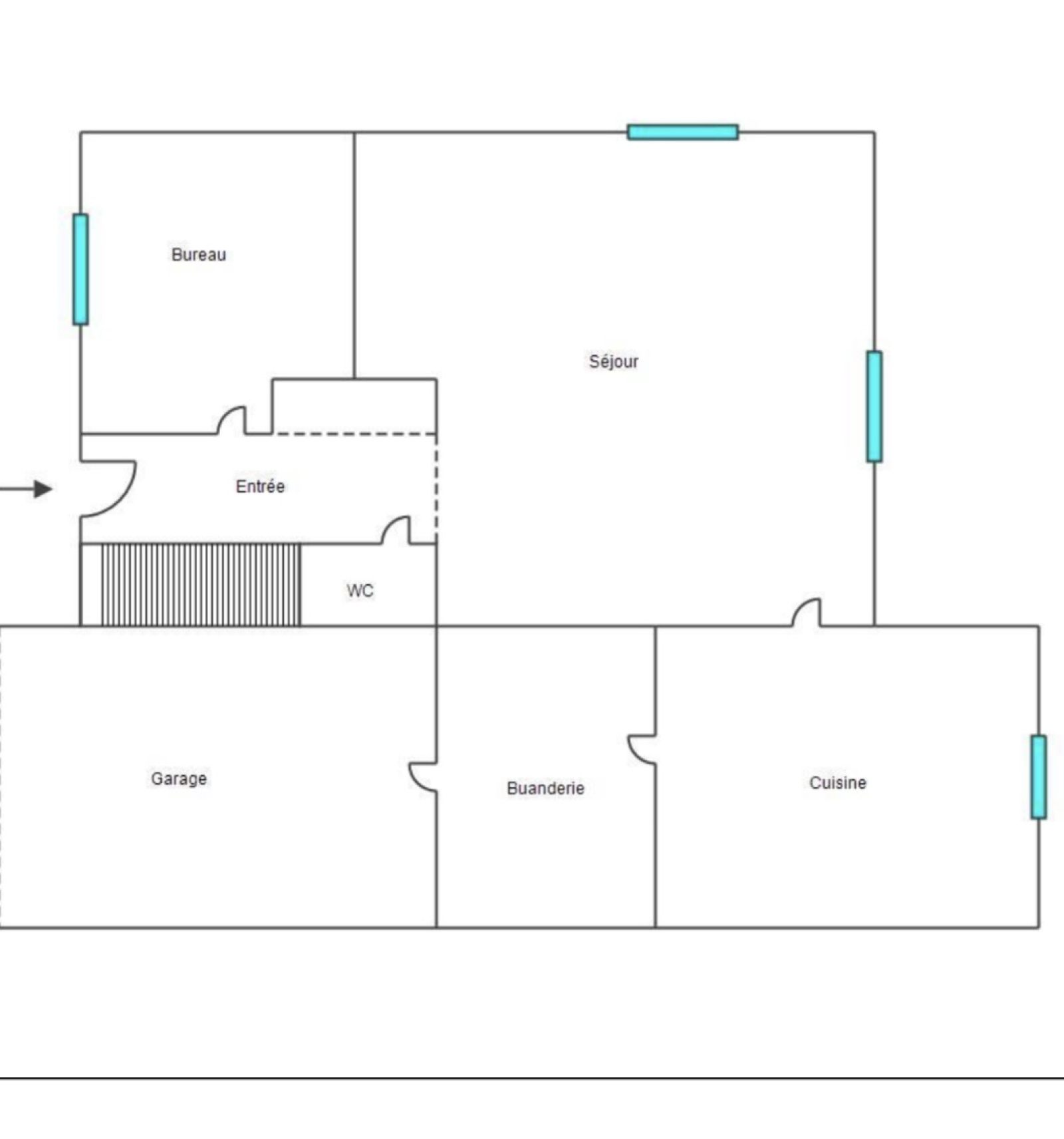
Actuellement, la maison propose un salon- salle à manger de 32m2 exposé sud ouest, avec une bibliothèque sur mesure (2013), et prolongé de 13m2 de cuisine SCHMIDT (2009), qui pourra facilement être ouverte sur le salon. Pour les aficionados des grands volumes, on peut imaginer également décloisonner l'actuel bureau (9,2m2), et obtenir une pièce de vie traversante Nord-Est / Sud-Ouest de quasiment 70m2.

À l'étage, 4 chambres de taille confortable (environ 10m2 carrez à 15m2 au sol), dont la chambre parentale, qui dispose de sa propre d'une salle d'eau.

Des toilettes se trouvent à chaque niveau de la maison. En annexe, vous aurez le plaisir de retrouver une arrière cuisine, un garage, et un abri de jardin.

ÉLÉMENTS DE CONFORT ET TRAVAUX RÉALISÉS : ravalement et entretien de façade, toiture et habillages de dessous de toiture impeccables, huisseries récentes, électricité aux normes, peintures plafond et murs du rez de chaussée de 2024 (hors bureau), volets roulants électriques (2009 et 2013), poêle à bois Haase, VMC récente (3 ans), isolation, portes intérieures du rez-de-chaussée et escalier en bois massif, cuisine Schmidt 2009.

CE QUE VOUS SOUHAITEREZ MODERNISER : décoration revêtement sols et murs, modernisation des salles d'eau.Les volets exterieurs en bois n'ont qu'une fonction occultante. Ils pourront néanmoins être poncés et repeints.

Descriptif de ce bien
Général
Code postal 44800
Nombre de chambre(s) 5
Nombre de pièces 6
Vue Jardin
Détails
Nb de salle de bains 1
Nb de salle d'eau 1
Cuisine Séparée
Type de cuisine Equipée
Mode de chauffage Electrique
Type de chauffage Convecteur
Format de chauffage Individuel
Balcon NON
Terrasse OUI
Murs mitoyens 1
Nombre de garage 1
Nombre de parking 1
Exposition Sud-Ouest
Année de construction 1996
Financier
Taxe foncière annuelle 1 769 €
Energie
DPE GES
Contacter pour ce bien
Négociateur
Pelloquin Aurélie Agent commercial
Téléphone 0667762506
N° RSAC RSAC 2020AC00308

* Champ obligatoire

Les informations recueillies sur ce formulaire sont enregistrées dans un fichier informatisé par La Boite Immo agissant comme Sous-traitant du traitement pour la gestion de la clientèle/prospects de l'Agence / du Réseau qui reste Responsable du Traitement de vos Données personnelles. La base légale du traitement repose sur l'intérêt légitime de l'Agence / du Réseau. Elles sont conservées jusqu'à demande de suppression et sont destinées à l'Agence / au Réseau. Conformément à la loi « informatique et libertés », vous disposez des droits d’accès, de rectification, d’effacement, d’opposition, de limitation et de portabilité de vos données. Vous pouvez retirer votre consentement à tout moment en contactant directement l’Agence / Le Réseau. Consultez le site https://cnil.fr/fr pour plus d’informations sur vos droits. Si vous estimez, après avoir contacté l'Agence / le Réseau, que vos droits « Informatique et Libertés » ne sont pas respectés, vous pouvez adresser une réclamation à la CNIL. Nous vous informons de l’existence de la liste d'opposition au démarchage téléphonique « Bloctel », sur laquelle vous pouvez vous inscrire ici : https://www.bloctel.gouv.fr Dans le cadre de la protection des Données personnelles, nous vous invitons à ne pas inscrire de Données sensibles dans le champ de saisie libre.
Ce site est protégé par reCAPTCHA, les Politiques de Confidentialité et les Conditions d'Utilisation de Google s'appliquent.

Découvrir nos outils