Espace propriétaire
fr

Votre recherche

Exclusivité
Nouveauté
Nantes (44100)

4 pièces - 83 m²

T4 | 3 ch | lumineux | calme | terrasse couverte | 2 parkings | marché de Zola

293 500 €
Ref : VAP-20250310-RIC
A propos de ce bien

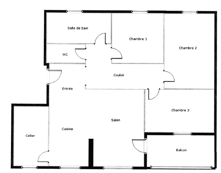
Hello, chez Flat, on est très fiers de vous présenter cet appartement idéalement situé à Zola, chemin Carnaud. 83m2 pour un appartement familial super bien agencé, à 7 min à pied de la place Zola, ses commerces et ses transports.

Ceux qui souhaitent bénéficier d'une 3ème chambre pourront tout simplement la refermer par une cloison (950€), puisque la porte, le radiateur, la fenêtre sont déjà existants.

3 chambres = une pièce de vie de 31 m2

2 chambres = une pièce de vie de 42m2

Cette pièce de vie ne serait pas complète si elle n'ouvrit pas sur une loggia (terrasse couverte) de 5 m2, que vous pourrez utiliser été comme hiver.

La cuisine, l'installation électrique, la totalité des fenêtres ainsi que les volets roulants électriques sont récents et au goût du jour. Il n'y a pas de travaux majeurs à prévoir ici, l'appartement est en excellent état, mais vous souhaiterez peut-être y ajouter quelques touches de redécoration selon vos goûts (sol, tapisserie des chambres, salle de bains par exemple.)

La cuisine est spacieuse et bien agencée, d'autant qu'elle est équipée d'une grande arrière-cuisine de presque 5m2 avec arrivées et évacuations d'eau.

Les deux chambres actuelles mesurent 11m2 chacune.

En l'état actuel, l'appartement est très bien agencé, avec sa partie jour bien séparée de la partie nuit, et son agencement qui en fait un appartement familial très pratique : une vraie entrée avec placard, l'espace cellier / buanderie / arrière-cuisine, salle de bains avec fenêtres, toilettes séparées. Au sous-sol, vous bénéficiez également d'une grande (et saine) cave.

Concernant le stationnement : une place de parking couverte en sous-sol, et un accès au parking partagé où vous pourrez garer sans difficulé un 2ème véhicule, ou faire stationner vos invités, et bien sûr, un accès au local à vélos commun.

Transports : bus arrêt Vaucanson (3min) / Tram ligne 1 (Du Chaffault).

LE MOT DES VENDEURS : " Nous avons adoré cet appartement, pouvoir tout faire à pied, profiter à la fois du calme et de la proximité du centre, et l'esprit convivial de la copropriété. L'appartement a été un lieu de vie à la fois chaleureux et fonctionnel."

Descriptif de ce bien
Général
Code postal 44100
Surface habitable (m²) 83 m²
Surface loi Carrez (m²) 83 m²
Nombre de chambre(s) 3
Nombre de pièces 4
Etage 1
Ascenseur NON
Détails
Nb de salle de bains 1
Mode de chauffage Electrique
Type de chauffage Convecteur
Format de chauffage AUTRE
Interphone OUI
Balcon OUI
Terrasse OUI
Cave OUI
Nombre de parking 1
Surface cave (m²) 5
Année de construction 1984
Financier
Prix de vente honoraires TTC inclus 293 500 €
Prix de vente honoraires TTC exclus 280 000 €
Honoraires TTC à la charge acquéreur 4,82 %
Taxe foncière annuelle 1 431 €
Energie
DPE GES
Contacter pour ce bien
Négociateur
Pelloquin Aurélie Négociatrice
Téléphone 0667762506

* Champ obligatoire

Les informations recueillies sur ce formulaire sont enregistrées dans un fichier informatisé par La Boite Immo agissant comme Sous-traitant du traitement pour la gestion de la clientèle/prospects de l'Agence / du Réseau qui reste Responsable du Traitement de vos Données personnelles.
La base légale du traitement repose sur l’intérêt légitime de l'Agence / du Réseau.
Elles sont conservées jusqu'à demande de suppression et sont destinées à l'Agence / au Réseau.
Conformément à la loi « informatique et libertés », vous pouvez exercer votre droit d'accès aux données vous concernant et les faire rectifier en contactant l'Agence / le Réseau.
Si vous estimez, après avoir contacté l'Agence / le Réseau, que vos droits « Informatique et Libertés » ne sont pas respectés, vous pouvez adresser une réclamation à la CNIL.
Nous vous informons de l’existence de la liste d'opposition au démarchage téléphonique « Bloctel », sur laquelle vous pouvez vous inscrire ici : https://www.bloctel.gouv.fr 
Dans le cadre de la protection des Données personnelles, nous vous invitons à ne pas inscrire de Données sensibles dans le champ de saisie libre
Ce site est protégé par reCAPTCHA, les Politiques de Confidentialité et les Conditions d'Utilisation de Google s'appliquent.

Découvrir nos outils