Espace propriétaire
fr

Votre recherche

Nantes (44200)

4 pièces - 75,36 m²

APPARTEMENT T3 / T4 - 75 m2 - DPE C | LUMINEUX | ASCENSEUR | BALCON | BOX sous-sol | 2/3 CHAMBRES | COMMERCES

Ref : VMK148
A propos de ce bien

POSEZ VOS VALISES ! situé Place de la Galarne | Infos Concises SEULEMENT CHEZ Flat And House Humaimbilier | Plan et DPE C dans les Photos | Vous recherchez un T4 ou un grand T3 sans travaux, à prix raisonnable, FAIRE VITE.

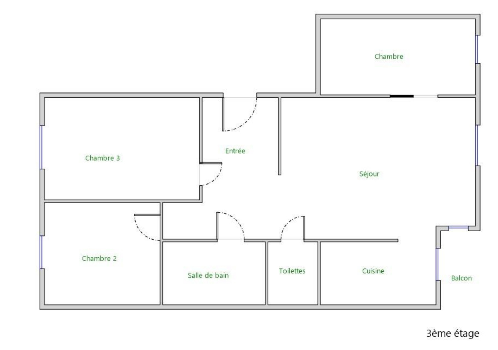
3ème étage (avec ascenseur) 75m2, pièce de vie de 32m2, 3 chambres, salle de bains, toilettes séparées. En annexe, cave sur le palier, box en sous-sol (prévoir la porte), local à vélos.

Copropriété ravalée en 2018, DPE C, chauffage urbain inclus dans les charges mensuelles de 114€ taxes foncières : 1299 euros - 220 000 Eu Net Vendeur.


Les informations sur les risques auxquels ce bien est exposé sont disponibles sur le site Géorisques
Descriptif de ce bien
Général
Code postal 44200
Surface loi Carrez (m²) 75,36 m²
Nombre de chambre(s) 3
Nombre de pièces 4
Etage 3
Nombre de niveaux 1
Ascenseur OUI
Vue Place de la Galarne
Détails
Nb de salle de bains 1
Cuisine Américaine
Type de cuisine Equipée
Mode de chauffage Autre
Type de chauffage Radiateur
Format de chauffage Collectif
Interphone OUI
Visiophone NON
Balcon OUI
Terrasse NON
Cave OUI
Surface cave (m²) 3.45
Exposition Sud-Est
Année de construction 1987
Financier
Charges 114 €
Energie
DPE GES
Contacter pour ce bien
Négociateur
Koulibaly Moussa Gérant
Téléphone 0682402468

* Champ obligatoire

Les informations recueillies sur ce formulaire sont enregistrées dans un fichier informatisé par La Boite Immo agissant comme Sous-traitant du traitement pour la gestion de la clientèle/prospects de l'Agence / du Réseau qui reste Responsable du Traitement de vos Données personnelles. La base légale du traitement repose sur l'intérêt légitime de l'Agence / du Réseau. Elles sont conservées jusqu'à demande de suppression et sont destinées à l'Agence / au Réseau. Conformément à la loi « informatique et libertés », vous disposez des droits d’accès, de rectification, d’effacement, d’opposition, de limitation et de portabilité de vos données. Vous pouvez retirer votre consentement à tout moment en contactant directement l’Agence / Le Réseau. Consultez le site https://cnil.fr/fr pour plus d’informations sur vos droits. Si vous estimez, après avoir contacté l'Agence / le Réseau, que vos droits « Informatique et Libertés » ne sont pas respectés, vous pouvez adresser une réclamation à la CNIL. Nous vous informons de l’existence de la liste d'opposition au démarchage téléphonique « Bloctel », sur laquelle vous pouvez vous inscrire ici : https://www.bloctel.gouv.fr Dans le cadre de la protection des Données personnelles, nous vous invitons à ne pas inscrire de Données sensibles dans le champ de saisie libre.
Ce site est protégé par reCAPTCHA, les Politiques de Confidentialité et les Conditions d'Utilisation de Google s'appliquent.

Découvrir nos outils