Espace propriétaire
fr

Votre recherche

Vendu
Nantes (44200)

3 pièces - 61 m²

SOUS PROMESSE

Ref : VAP-20240909-FAU2
A propos de ce bien

[VENDU]

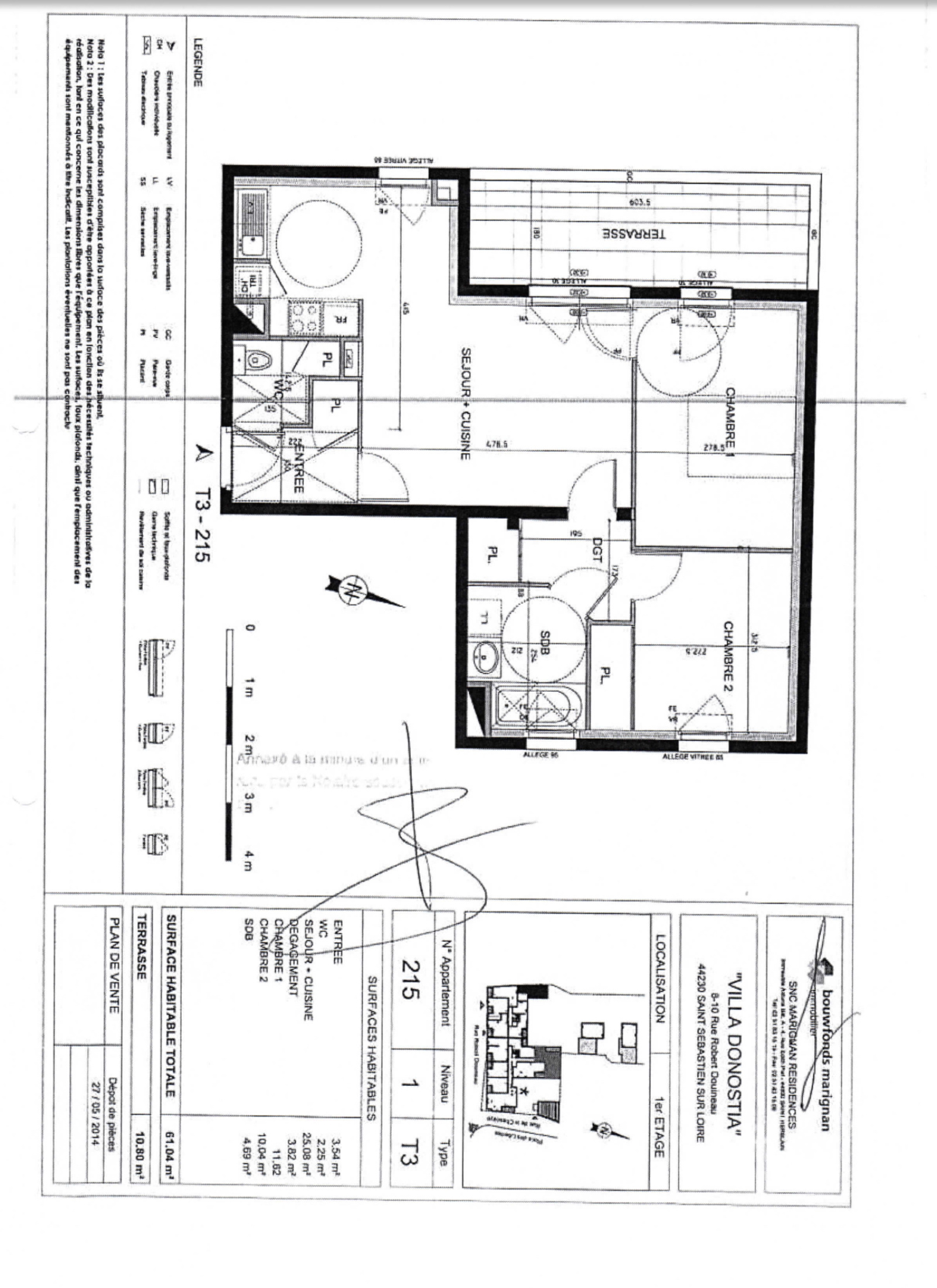
FLAT AND HOUSE Humaimbilier & Aurélie Pelloquin présentent en exclu : PLACE DU DOUET (donnant sur l'arrière de l'immeuble), découvrez ce T3 ultra-lumineux, dans un état impeccable ! Il propose une pièce de vie de 25m2, comprenant une cuisine aménagée par Cuisinella, et équipée (hotte, plaques induction, four), et dont le salon ouvre sur une terrasse de 11 m2, en partie couverte, exposée Sud-Ouest. De belle taille, elle vous permettra d'y installer une grande table, ou un bel espace de détente pour profiter des beaux jours.

La partie nuit propose 2 chambres (11,7 et 10m2), dont l'une ouvre également sur la terrasse. La salle de bain, spacieuse, est dotée d'une fenêtre oscillo-battante, et d'un sèche serviettes pour un maximum de confort. Toilettes séparées.

Les rangements de cet appartement sont nombreux, et l'on ne déplore aucune perte de place. L'entrée est équipée d'un visiophone et d'un placard.

En annexe, une place de parking abritée, et un local de rangement individuel sont vendus avec l'appartement. Idéal pour un premier achat ou un investissement en toute sérénité, puisque la copropriété est parfaitement entretenue, sans travaux importants à prévoir dans l'immédiat.


Les informations sur les risques auxquels ce bien est exposé sont disponibles sur le site Géorisques
Descriptif de ce bien
Général
Code postal 44200
Nombre de chambre(s) 2
Nombre de pièces 3
Etage 1
Ascenseur OUI
Détails
Nb de salle de bains 1
Mode de chauffage Gaz de ville
Type de chauffage TRAD_TYPE_CHAUFF_CHAUDIERE
Format de chauffage Individuel
Interphone OUI
Visiophone OUI
Nombre de parking 1
Année de construction 2015
Quartier Nantes Sud
Financier
Charges 100 €
Taxe foncière annuelle 1 061 €
Energie
DPE GES
Contacter pour ce bien
Négociateur
Pelloquin Aurélie Agent commercial
Téléphone 0667762506
N° RSAC RSAC 2020AC00308

* Champ obligatoire

Les informations recueillies sur ce formulaire sont enregistrées dans un fichier informatisé par La Boite Immo agissant comme Sous-traitant du traitement pour la gestion de la clientèle/prospects de l'Agence / du Réseau qui reste Responsable du Traitement de vos Données personnelles. La base légale du traitement repose sur l'intérêt légitime de l'Agence / du Réseau. Elles sont conservées jusqu'à demande de suppression et sont destinées à l'Agence / au Réseau. Conformément à la loi « informatique et libertés », vous disposez des droits d’accès, de rectification, d’effacement, d’opposition, de limitation et de portabilité de vos données. Vous pouvez retirer votre consentement à tout moment en contactant directement l’Agence / Le Réseau. Consultez le site https://cnil.fr/fr pour plus d’informations sur vos droits. Si vous estimez, après avoir contacté l'Agence / le Réseau, que vos droits « Informatique et Libertés » ne sont pas respectés, vous pouvez adresser une réclamation à la CNIL. Nous vous informons de l’existence de la liste d'opposition au démarchage téléphonique « Bloctel », sur laquelle vous pouvez vous inscrire ici : https://www.bloctel.gouv.fr Dans le cadre de la protection des Données personnelles, nous vous invitons à ne pas inscrire de Données sensibles dans le champ de saisie libre.
Ce site est protégé par reCAPTCHA, les Politiques de Confidentialité et les Conditions d'Utilisation de Google s'appliquent.

Découvrir nos outils