Espace propriétaire
fr

Votre recherche

Nantes (44100)

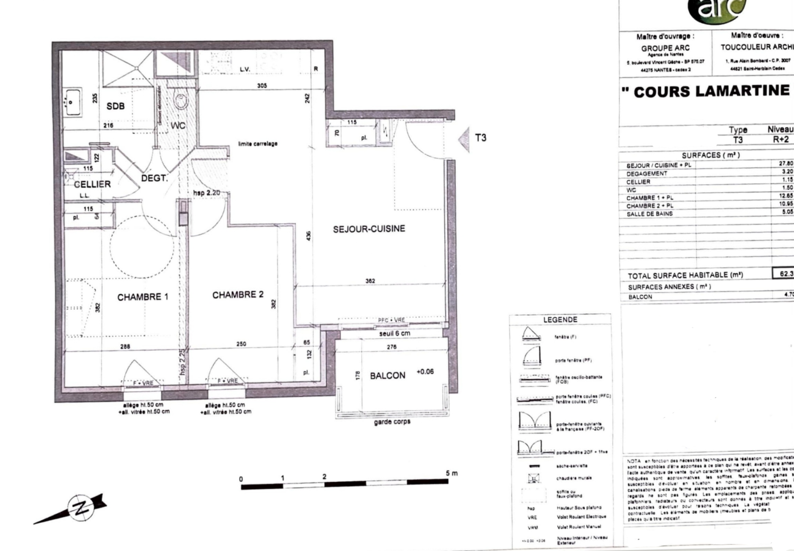
3 pièces - 62,30 m²

Appartement Type 3 NEUF (livré 2022) - QUARTIER CANCLAUX- PROCE (Chézine) - Cours LAMARTINE

Ref : VMk135-1
A propos de ce bien

FLAT AND HOUSE HUMAIMBILIER, vous propose : APPARTEMENT NEUF déjà livré et sa Cave et Local vélo / Type 3 de 62,3 m2 Carrez RUE PLESSIS DE LA MUSSE / grand Balcon / EXposé Ouest / 2 chambres / Cuisine aménagée et équipée / Aucun travaux à prévoir / disponible tout de suite / DPE C / Charges à 73 eu mensuels / TF à 1 169 eu.

Excellente construction du groupe ARC ( Promoteur nationnal justifiant d'un grand nombre de projets reussis sur la place Nantaise). Cet appartement allie les avantages du neuf ( matériaux, sécurité de l'investissement, aucun travaux , garantie décennale et D.O. , prestations de qualité) et la rapide disponibilité et visite de l'existant.Ce bien vous reviendra moins cher que du neuf pas encore construit mais avec les mêmes garanties et confort intérieur. La rue du plessis de la musse, est une rue très calme, juché dans le haut du quartier Canclaux (proche procé) à deux pas du cours de la Chézine.Les transports fréquents sont à proximité du bien.Commerces et centre ville accessibles à pieds .L'appartement respecte les normes handicapé et mobilité réduite. si vous souhaitez consulter la fiche descriptive de la construction et avoir plus d'information sur ce bien, rare sur le marché, contactez l'agence au 02.40.02.18.60 ou Mr Koulibaly directement au 06.82.40.24.68


Les informations sur les risques auxquels ce bien est exposé sont disponibles sur le site Géorisques : www.georisques.gouv.fr

Descriptif de ce bien
Général
Code postal 44100
Surface loi Carrez (m²) 62,30 m²
Nombre de chambre(s) 2
Nombre de pièces 3
Etage 2
Nombre de niveaux 4
Ascenseur OUI
Détails
Nb de salle de bains 1
Nb de salle d'eau 1
Cuisine Américaine
Type de cuisine Equipée
Interphone OUI
Visiophone OUI
Balcon OUI
Terrasse OUI
Cave OUI
Surface cave (m²) 6
Exposition Ouest
Année de construction 2022
Quartier CANCLAUX, MELLINET
Financier
Charges 73 €
Taxe foncière annuelle 1 169 €
Energie
DPE GES
Contacter pour ce bien
Négociateur
Koulibaly Moussa Gérant
Téléphone 0682402468

* Champ obligatoire

Les informations recueillies sur ce formulaire sont enregistrées dans un fichier informatisé par La Boite Immo agissant comme Sous-traitant du traitement pour la gestion de la clientèle/prospects de l'Agence / du Réseau qui reste Responsable du Traitement de vos Données personnelles. La base légale du traitement repose sur l'intérêt légitime de l'Agence / du Réseau. Elles sont conservées jusqu'à demande de suppression et sont destinées à l'Agence / au Réseau. Conformément à la loi « informatique et libertés », vous disposez des droits d’accès, de rectification, d’effacement, d’opposition, de limitation et de portabilité de vos données. Vous pouvez retirer votre consentement à tout moment en contactant directement l’Agence / Le Réseau. Consultez le site https://cnil.fr/fr pour plus d’informations sur vos droits. Si vous estimez, après avoir contacté l'Agence / le Réseau, que vos droits « Informatique et Libertés » ne sont pas respectés, vous pouvez adresser une réclamation à la CNIL. Nous vous informons de l’existence de la liste d'opposition au démarchage téléphonique « Bloctel », sur laquelle vous pouvez vous inscrire ici : https://www.bloctel.gouv.fr Dans le cadre de la protection des Données personnelles, nous vous invitons à ne pas inscrire de Données sensibles dans le champ de saisie libre.
Ce site est protégé par reCAPTCHA, les Politiques de Confidentialité et les Conditions d'Utilisation de Google s'appliquent.

Découvrir nos outils