Espace propriétaire
fr

Votre recherche

Nantes (44200)

2 pièces - 52 m²

T2bis / T3 possible | Architecte d'intérieur | Aperçu Loire | Immeuble BBC | Balcon | Parking

Ref : VAP-20250915-LAHc
A propos de ce bien

[ Annonce par Aurélie Pelloquin ]

Avec l'agence Flat, j'ai le plaisir de vour présenter en exclusivité cet appartement particulièrement beau et lumineux, de 52m2, situé rue de la Prarie d'Aval, quartier Mangin, à proximité immédiate des commerces, du futur CHU... et de la Loire.

Aucuns travaux n'est à prévoir ici : la copropriété a été entièrement ravalée et réisolée par l'extérieur en 2018, quant à l'appartement, il a été complètement rénové par une architecte d'intérieur en 2015. Tout a été pensé pour optimiser les espaces, et la circulation, ce qui en fait un appartement très chaleureux et agréable à vivre.

Son parquet raconte même une petite histoire que je vous partagerai en visite !

Pour les caractéristiques techniques :

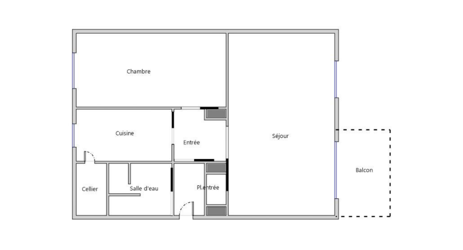
- surface totale 52m2 + balcon 7m2 (idéal pour recevoir les proches, quasiment plein sud, avec en prime un petit aperçu Loire entre les arbres

- salon/séjour de 24m2 sur parquet massif d'origine rénové. Une 2ème chambre est possible dans cette pièce, en réduisant le salon.

- cuisine ultra fonctionnelle et équipée (réfrigérateur/ congélateur encastré, plaques, four, hotte, lave-vaisselle), prolongée d'un espace buanderie

- salle d'eau / WC avec douche à l'italienne

- une chambre de quasiment 12m2, idéale pour accueillir un grand lit et un dressing.

- aucune perte de place, et de nombreux rangements.

Toutes les huisseries sont récentes (2015), oscillo-battantes, en PVC double vitrage, avec volets roulants électriques ; l'électricité a été refaite en 2015, la VMC est également présente dans l'appartement. Pour un confort optimal, l'appartement est vendu avec une cave, un grabd local à vélo, et une place de parking.

Quant à la copropriété, elle est constituée de 20 lots d'habitation, elle est parfaitement entretenue, et ses nombreux copropriétaires occupants y sont particulièrement investis.

Mon avis : un bien est parfaitement au goût du jour, lumineux, véritable coup de coeur pour celles et ceux qui recherchent un achat clé en mains et serein.

Cet appartement est actuellement classé D, les données du DPE ont été mises à jour à partir du simulateur officiel de l'ADEME, une attestation sera disponible dès le 01/01/2026.

J'ai hâte de vous présenter cette jolie pépite ! D'ici là, retrouvez moi sur Facebook, Insta et Linkedin : Aurélie Pelloquin Immo

Descriptif de ce bien
Général
Code postal 44200
Surface loi Carrez (m²) 52 m²
Nombre de chambre(s) 1
Nombre de pièces 2
Ascenseur NON
Vue Loire
Détails
Nb de salle d'eau 1
Type de cuisine Equipée
Interphone OUI
Balcon OUI
Murs mitoyens 1
Cave OUI
Nombre de parking 1
Surface cave (m²) 7
Exposition Sud
Année de construction 1974
Quartier ILE DE NANTES NOUVEAU CHU
Financier
Charges 99,50 €
Taxe foncière annuelle 1 031 €
Energie
DPE GES
Contacter pour ce bien
Négociateur
Pelloquin Aurélie Agent commercial
Téléphone 0667762506
N° RSAC RSAC 2020AC00308

* Champ obligatoire

Les informations recueillies sur ce formulaire sont enregistrées dans un fichier informatisé par La Boite Immo agissant comme Sous-traitant du traitement pour la gestion de la clientèle/prospects de l'Agence / du Réseau qui reste Responsable du Traitement de vos Données personnelles. La base légale du traitement repose sur l'intérêt légitime de l'Agence / du Réseau. Elles sont conservées jusqu'à demande de suppression et sont destinées à l'Agence / au Réseau. Conformément à la loi « informatique et libertés », vous disposez des droits d’accès, de rectification, d’effacement, d’opposition, de limitation et de portabilité de vos données. Vous pouvez retirer votre consentement à tout moment en contactant directement l’Agence / Le Réseau. Consultez le site https://cnil.fr/fr pour plus d’informations sur vos droits. Si vous estimez, après avoir contacté l'Agence / le Réseau, que vos droits « Informatique et Libertés » ne sont pas respectés, vous pouvez adresser une réclamation à la CNIL. Nous vous informons de l’existence de la liste d'opposition au démarchage téléphonique « Bloctel », sur laquelle vous pouvez vous inscrire ici : https://www.bloctel.gouv.fr Dans le cadre de la protection des Données personnelles, nous vous invitons à ne pas inscrire de Données sensibles dans le champ de saisie libre.
Ce site est protégé par reCAPTCHA, les Politiques de Confidentialité et les Conditions d'Utilisation de Google s'appliquent.

Découvrir nos outils